物件詳細情報
売買中古:村山市河島
売買中古:村山市河島
-
- 交通
- 楯岡駅まで約3.2㎞
-
- 価格
- 1,000,000円
-
- 所在地
-
村山市大字河島乙118-2
[地図を見る]
-
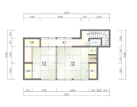
- 間取り
- 6DK+車庫・作業場・収納
-
- 建物延べ面積
- 217.98㎡(65.93坪)
-
- 施工会社
-
- 構造
- 木造亜鉛メッキ鋼板葺き2階建
-
- 築年数
- 不明
-
- 仕様
-
- 敷地面積
- 628.35㎡(190.07坪)
-
- 学区
- ・
-
- 地目
- 宅地
-
- 接道
- 東側(幅員約15m)、北側(幅員約4m)
-
- 権利
- 所有権
-
- その他
-
POINT
古民家をリフォームしてお住まいになりたい方にピッタリ
-
- 区域区分
- 非線引き
-
- 用途地域
- 第1種住居
-
- 建ぺい率
- 60%
-
- 容積率
- 200%
-
- 法令上の制限
-
- 水道
- 引込済み(20㎜)
-
- 排水
- 引込済み
-
- ガス
- 個別プロパン
-
- 電気
- 東北電力
-
- 雨水
- 浸透式
-
- 現況
- 空き家
-
- 引渡日
- 即可
-
- 取引態様
- 仲介(仲介手数料33万円 宅建業法46条に基づく国交省告示第七)
-
- 周辺環境
- 住宅地
-
- 備考
-
- 情報登録日
- 2025年10月21日
-
- 次回更新予定日
- 2025年11月21日
※図面及び写真が現況と相違する場合は、現況優先とさせていただきます。
※当サイトでは掲載情報に厳重なチェックを心がけておりますが、万が一記載ミスが生じた場合、予めご容赦下さい。







